Minél tovább nézzük, annál inkább elbűvöl ez ház, aminek a téglaburkolata rafinált belső tereket, és főleg mesterien kitalált fényeket rejt.
Szokatlan helyről kaptunk anyagot egy különleges projektről: Tajvan Kaohsziung nevű munkásnegyedében, nem messze az 1899-ben épült téglaégető-kemencétől, azaz a Tajvan-Renga (台灣煉瓦) történelmi épületétől tervezett egy házat a Paperfarm Inc iroda. Ez a környék történelmét felidéző Veil House (fátyolház), faliszőnyegszerű homlokzattal, ahol az agyagtéglák mintha lebegnének.
De nem csupán ettől különleges az épület: masszív homlokzatával reagál a környék sikátoros utcáira, ahol a szomszédok közelsége és a hiperaktív társas élet veszélyezteti a magánéletet. A körülmények miatt az ablakokat gyakran egész nap árnyékolják, az erkélyeket és a teraszokat nagyrészt kihasználatlanul hagyják. A Veil House másképpen reagál erre a nyilvános/privát dinamikára:
békés visszavonulást tesz lehetővé, ablakok nélkül, ahol a perforált téglahomlokzat mégis enged szűrt fényt az összes lakó- és hálószobába.
Mint egy lélegző, légáteresztő bőrt képzelték újra az épülethéjat: a bőr pórusaihoz hasonlóan a perforáció sűrűségét a burkolatok mögötti funkcionális igényeknek megfelelően alakították ki.
Az utcafronti homlokzat
A „téglafátylat” úgy alakították ki, hogy ellenálljon az arrafelé gyakori földrengéseknek és tájfunoknak. Négyféle méretű téglát használtak, melyeket különböző módokon rögzítettek (betonvasakkal, acélcsatornákkal, szögelésekkel), precízen kiszámítva gyakorlatilag minden egyes darab helyét a belső igények függvényében. Még három vészkijárat is van, a homlokzatba zökkenőmentesen illeszkedő fűrészfogas elrendezésben.
Vészkijárat a tervben és a valóságban
Az autóbeállót úgy találták ki, hogy az ne zavarja vizuálisan a gyalogosok bejáratát. A porfestett rozsdamentes acélból készült garázsajtó 366 centi széles és 214 centi magas. Az ajtót tartó mechanikus sínt felülről rögzítették, és a működése remekül látszik a videón.
De mindez csak a távolságtartó külső; odabent aztán barátságos hangulat fogad, gondosan megkomponált fényekkel, számtalan, meditációra alkalmas térrel.
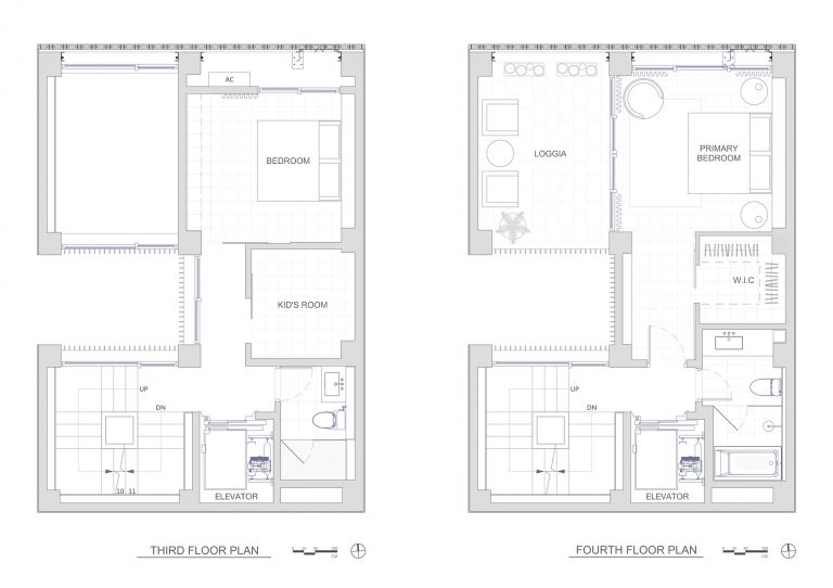
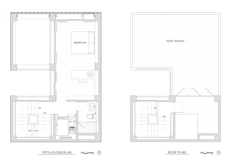
Persze a hat szint bőven ad lehetőséget ilyen terek létrehozására, de a tervezők éltek is a ziccerrel. Mindjárt a bejárat után egy belső kerten át jutunk el a házba, így teremtik meg az átmenetet a nyüzsgő utca és a nyugodt otthon közt.
Belső udvar és a hozzá kapcsolódó pihenő terek
A lakók a földszinten egy nyitott átrium körül keringenek, onnan juthatnak el az első emeleti fő lakótérbe. Az átriumot alkotó alumínium lamellák a funkciójukon túl egy tajvani építészeti hagyomány előtt tisztelegnek, de a funkciót se becsüljük le: lényegében ez az átrium a ház motorja, amennyiben
a földszinten városi kert; a hálószobák erkélyeinél fénykút, ami természetes fényt visz a szobákba; a főhomlokzat felől légáramlást biztosító szellőzőakna; és végül több szintet összekötő, a lakók térhasználatát működtető elem.
És innentől egyre érdekesebbé válik a játék, belépünk az egyes helyiségekbe, ahol értelmet nyer az egész játék a perforált téglaburkolattal.
A „fátyol” mögött folyamatosan változik a perspektíva, az egyes szinteken, de függőlegesen is; az alapvetően introvertált épület a közösségi terekbe például bőven enged fényt.
Az egybenyitott közösségi terekben meghatározó az egyedi tervezésű terrazzo padlóburkolat, míg a nyers anyaghasználatot ellenpontozza a teljes hosszban beépített fehér tölgyfa konyabútor. Ugyanezzel az anyaggal dolgoztak a nappaliban és a tároló helyiségekben is.
Még a lépcső töréseit és fényeit is nagyon kitalálták
Az egész lakásban meghatározóak az erős kontrasztok, például minden szék fekete, ahogy sok kiegészítő elem is
Szándékosan kevés anyagfajtát használtak, ezzel is nagyobb figyelmet irányítva a téglahomlokzatra, egyúttal elősegítve a pihenést a csendes, minimalista beltérben.
Hálószoba
Végeredményben a tégla utal a környékbeli hagyományokra, elszigeteli a házat a forgalmas utcától, odabent pedig lehetőséget teremt egy kényelmes, szellős életvitelhez.
Veil House, Tajvan (Kaohsziung City)
Építész tervező: Paperfarm Inc
Bruttó szintterület: 315 m²
Alapterület: 97 m²
Átadás éve: 2023
Szintek száma: 5
A hat szint alaprajza és az épület metszete
(Forrás: Paperfarm Inc, fotó: Daniel Yao)
Ez is érdekelhet:




























